Apartament z panoramicznym widokiem na morze w jednej z najbardziej ekskluzywnych dzielnic mieszkalnych Benidormu: In-tempo.
Posiadanie domu w budynku In-tempo to o wiele więcej; to prawdziwe przeżycie, którego nie można przegapić.
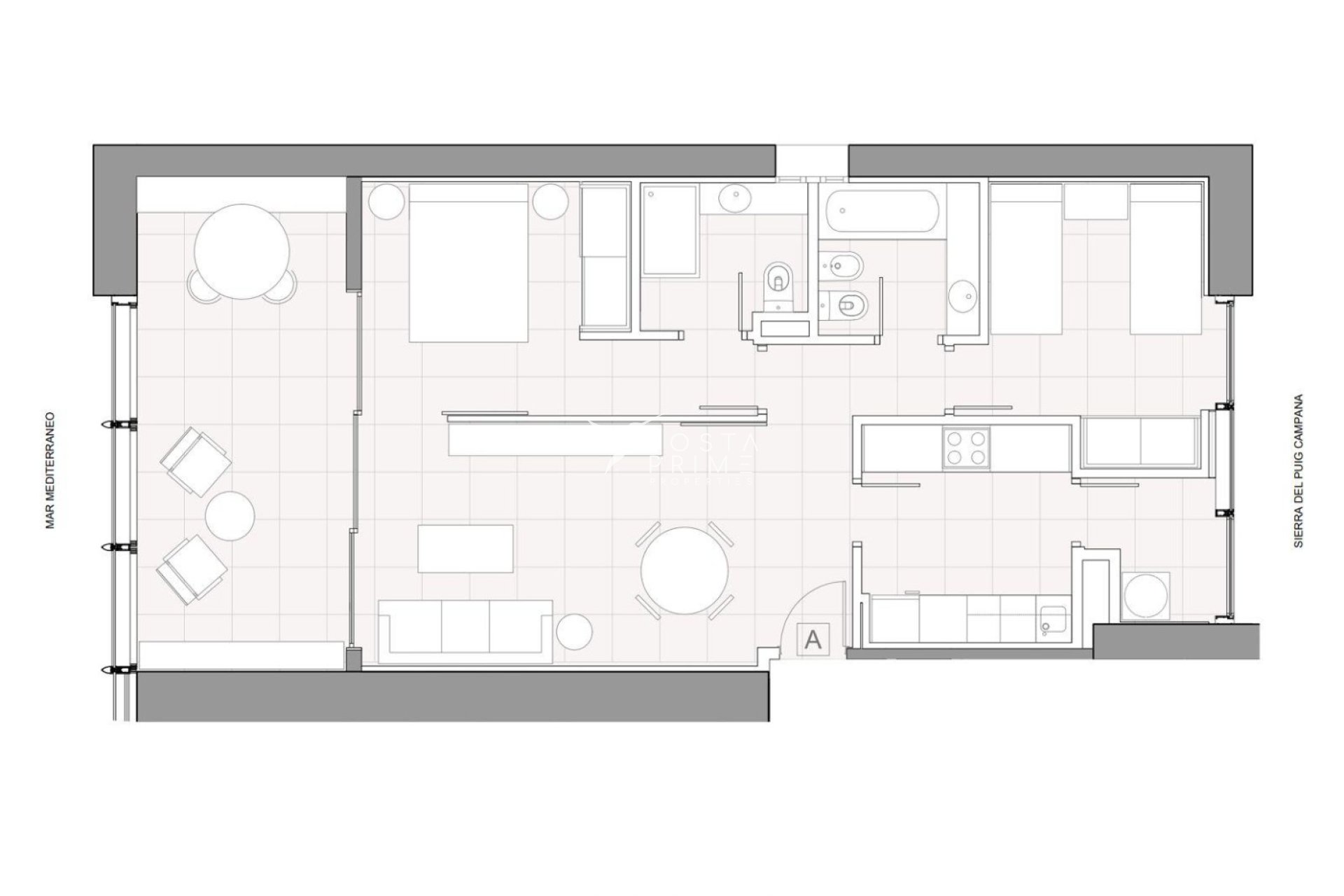
Przedstawiamy ten luksusowy apartament z zachwycającym widokiem na Morze Śródziemne, wyposażony w najwyższej jakości materiały wykończeniowe. Oferuje on jasny salon z jadalnią z bezpośrednim wyjściem na przestronny taras z panoramicznym widokiem na morze, oddzielną kuchnię w pełni wyposażoną w wysokiej klasy sprzęt AGD oraz dwie sypialnie dwuosobowe i dwie łazienki (jedna z łazienką en-suite).
Apartament jest sprzedawany w pełni umeblowany i wyposażony w klimatyzację kanałową. Wysokiej jakości wykończenia.
Do apartamentu przynależy również miejsce parkingowe w piwnicy i schowek.
Intempo Residential Sky Resort, położony przy plaży Poniente w Benidormie, to najwyższy budynek mieszkalny w Europie. To luksusowy i prestiżowy budynek z częściami wspólnymi na parterze i dwóch najwyższych piętrach. Do dyspozycji Gości jest spa, sauna, siłownia, kilka gabinetów masażu oraz bar-kawiarnia. Będziesz mieć okazję zrelaksować się w jednym z zewnętrznych jacuzzi wysoko nad Benidormem. Tuż obok znajduje się strefa wypoczynkowa z hamakami – idealne miejsce na kieliszek szampana, o którym zawsze marzyłeś.
Ze wszystkich tych udogodnień roztaczają się panoramiczne widoki na góry i piękne zatoki Morza Śródziemnego. Personel recepcji i concierge z uśmiechem na twarzy pomoże Ci w każdej potrzebie. Do dyspozycji gości jest kilka basenów, strefa dla dzieci, restauracja i wiele innych atrakcji. Pomieszczenia wspólne na parterze znajdują się kilka metrów nad drogą publiczną, co pozwala cieszyć się pobytem w pełnej prywatności. Wszystko to jest do wyłącznego użytku mieszkańców.